Titus Landing
After some starts and stops due to the COVID-19 pandemic, Titus Landing was completed in late spring 2022!
Titus Landing is an 8-unit stacked townhome development centrally located on the former Canadian Forces Rockcliffe Airbase, in a growing neighbourhood close to amenities such as transit, and parks and schools.
Find out more about our Titus Landing Families:



Project Profile
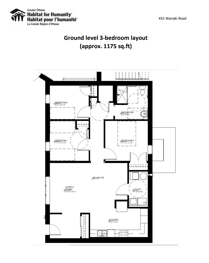
- Located at 455 Wanaki Road
- New development centrally located near transit, amenities and waterfront
- Construction began spring 2020; move-in winter 2022
- 8 stacked townhomes in two adjacent buildings
- Accessible barrier-free 3-bedroom unit on ground floor
- 3-bedroom units occupy full second floor
- 4-bedroom units are split level two-story on third and fourth floors
- Stacked townhomes do not include basements or yards
- Shared outdoor space and outdoor parking provided
- The Titus Landing project will follow Habitat Greater Ottawa’s Pathways to Homeownership Program
The Titus Landing development at Wateridge Village will follow Habitat Greater Ottawa’s Pathways to Homeownership Program. It is a ‘rental with an option to purchase’ model that will convert to homeownership after twenty years. The purchase price of the home will reflect the fair market value of the home at the time of move-in, and the development will convert to a condo at the end of the twenty-year term. If the family remains in the home for twenty years, they will receive title to their home and the equity portion of their monthly payments will be applied to the purchase price of the home.
Benefits of the Titus Landing Pathways Model
- The home’s purchase price will be determined at the time of move-in and the family will have the option to purchase the home at the end of the 20-year affordability period.
- There is no down payment required, removing a significant barrier to homeownership for many families.
- Affordable monthly mortgage payments will be set at 80 percent of Average Market Rent, and will not exceed 30 percent of gross household income.
- A portion of the monthly payment will go toward maintenance fees, a reserve fund, property taxes and insurance.
- The balance of monthly payments will be put toward the principal owing on the home.
- Expenses such as utilities, tenant insurance and other household needs are the responsibility of the family.
Our Affordable Homeownership Program offers more than just housing; it sets families up to be successful homeowners who are invested in their homes and in their community.
For more information on our Affordable Homeownership Program please read through our Frequently Asked Questions or contact our Family Services team at home@habitatgo.com.
Titus Landing will include one accessible barrier-free 3-bedroom unit located on the ground floor. Accessible outdoor parking and barrier-free access leading to the entries will enable those with mobility issues to safely access the home.
Accessible housing can work for everyone, including those with physical disabilities. It also allows people to stay in their homes as their circumstances change, without expensive renovations. Our accessible units will feature wider door frames, open turning spaces within rooms, easy-to grab handle levers and light switches, a wheel-in shower stall and kitchen work surfaces with knee space below and adjustable storage spaces above.
Note: Families interested in the accessible units must qualify under Habitat Greater Ottawa’s Eligibility Criteria. We recognize the diversity of people with disabilities and will work with interested families on a case-by-case basis to ensure Habitat’s current accessible units adequately meet the needs of your family.
Learn more about the Eligibility Criteria and on how to apply.
For more information on our Affordable Homeownership Program please read through our Frequently Asked Questions or contact our Family Services team at home@habitatgo.com.
Take a 3D Virtual Tour of our Titus Landing Units
Wondering what the inside of a Habitat Greater Ottawa home looks like? The Titus Landing development was the first time we built stacked townhomes and now you can take a walk through the completed units with a 3D Virtual Tour!Click the links below for a virtual tour:
Click here for the 3D Virtual Tour website of the 1 floor unit
(Staged with furniture and home décor from the ReStore!)
Click here for the 3D Virtual Tour website of the 2 floor unit
Click here for the 3D Virtual Tour website of the Accessible Unit





Thank you to our Titus Landing Development Sponsor:

“We sponsor Habitat Greater Ottawa because it supports families in their quest to own their own home, which can be instrumental in providing them with a sense of pride and security. In addition, we have discovered that the Habitat “build days” are an excellent corporate team building activity enabling employees to feel connected with their community and their fellow coworkers.”
– Red Roof Foundation
